墨田区東向島4丁目 新築一戸建て
月々の支払い
0円
| 物件価格 | 万円 |
|---|---|
| 自己資金 (頭金) |
万円 |
| 金利 | % |
| 返済年数 |
40年(NEW) 35年(一般的) 30年 |
※返済金額はあくまでも目安の数値となります。詳しくは下記よりご相談ください。
資金計画相談お問い合わせ ▶ 錦糸町店
0120-987-419
| 価格 | 6280万円 (税込) |
| 所在地 | 東京都墨田区東向島4丁目 |
| 沿線・駅 | 東武伊勢崎線東向島駅 徒歩5分 東武亀戸線曳舟駅 徒歩14分 京成押上線八広駅 徒歩15分 |
| 建物面積 | 84.85m2(25.66坪) |
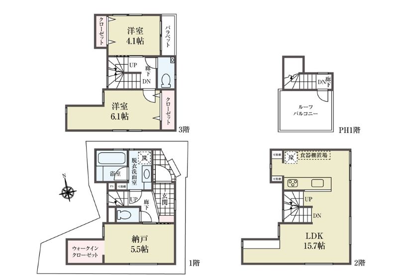
| 間取り | 2LDK+S |
間取り・区画図
おすすめポイント
【東向島4丁目新築戸建て】
◇◆◇おすすめPOINT◇◆◇
・東武伊勢崎線『東向島』駅から徒歩5分。京成押上線『京成曳舟』駅から徒歩14分!2路線3駅利用可能な便利な交通アクセス♪
・お子様の教育施設やお買い物などの商業施設が徒歩圏内♪
・スーパー・コンビニ・ドラッグストアも歩いてすぐの便利な立地です♪
・プレゼンテーションのご予約承り中です!
・ルーフバルコニー付き!衣類乾燥機『乾太くん』付き!
・一戸建て参考プランを見ながら同施工会社のモデルハウスがご見学可能です。
・パントリー、ウォークインクローゼット完備!
・おかげさまでGoogle口コミ☆5.0 2025年11月末
◇◇ご見学予約受付中◇◇
・現地とプレゼンテーションご見学予約を受付中です。ご希望の日時をお伝え下さい。
【ハウスプラザ錦糸町店 0120-987-419】まで
お気軽にお問合せ下さい。
物件詳細
| 所在地 | 東京都墨田区東向島4丁目14-12 | ||
|---|---|---|---|
| 交通 | 東武伊勢崎線東向島駅 徒歩5分 東武亀戸線曳舟駅 徒歩14分 京成押上線八広駅 徒歩15分 |
||
| 総戸数 | 1戸 | ||
| 販売戸数 | 1戸 | ||
| 価格 | 6280万円 (税込) | ||
| 土地面積 | 45.83m2(13.86坪) | ||
| 建物面積 | 84.85m2(25.66坪) | ||
| 土地権利 | 所有権 | ||
| 間取り | 2LDK+S | ||
| 築年月 | 令和8年2月 | ||
| 構造 | 木造 地上3階建て | ||
| 都市計画 | 市街化 | ||
| 用途地域 | 準工業地域 | ||
| 建ぺい率/容積率 | 90% / 200% | ||
| 地目 | 宅地 | ||
| 接道 | 東側 4.00m 私道 | ||
| 私道負担 | 有(面積:340.00m²(102.85坪)×持分:1/14) |
||
| 現況 | 未完成 | ||
| 設備 | 都市ガス 公営水道 公共下水 | ||
| 入居年月 | 期日指定 2026年3月下旬 | ||
| 取引形態 | 媒介 | ||
| 備考 | 第25UDI1T建02675号 準防火地域、宅地造成工事規制区域、第3種高度地区、第2種特別工業地区、新防火区域、【私道負担】他有り:0.35平米×1/14、0.31平米×1/14、0.36平米×1/14、1.93平米×1/14 | ||
| 更新日 | 2025年12月1日 | ||
| 次回更新予定日 | 2026年1月6日 | ||
| 取引有効期限 | 2026年01月06日 | ||
周辺環境
| 施設 | 墨田区立第二寺島小学校 398m 墨田区立桜堤中学校 865m セブンイレブン墨田東向島4丁目北店 270m ライフ東向島店 183m LaLaテラス南千住 2200m 梶原病院 1100m 穂来彩クリニック 160m 大倉医院 235m くすりの福太郎東向島店 400m 墨田幼稚園 764m 墨田区墨田二丁目出張所 666m 長寿庭園 138m 東向島北公園 163m あおやぎ保育園 294m |
||
|---|---|---|---|
| 周辺の物件検索 | |||
現地見学会情報
月々の支払い
0円
| 物件価格 | 万円 |
|---|---|
| 自己資金 (頭金) |
万円 |
| 金利 | % |
| 返済年数 |
40年(NEW) 35年(一般的) 30年 |
※返済金額はあくまでも目安の数値となります。詳しくは下記よりご相談ください。
資金計画相談お問い合わせ 錦糸町店
0120-987-419
















































