墨田区東向島6丁目 売地/建築条件付き/全3区画 A区画
| 価格 | 5223.4万円 |
| 所在地 | 東京都墨田区東向島6丁目 |
| 沿線・駅 | 東武伊勢崎線東向島駅 徒歩6分 東武伊勢崎線曳舟駅 徒歩11分 京成押上線京成曳舟駅 徒歩7分 |
| 土地面積 | 73.45m2(22.21坪) |
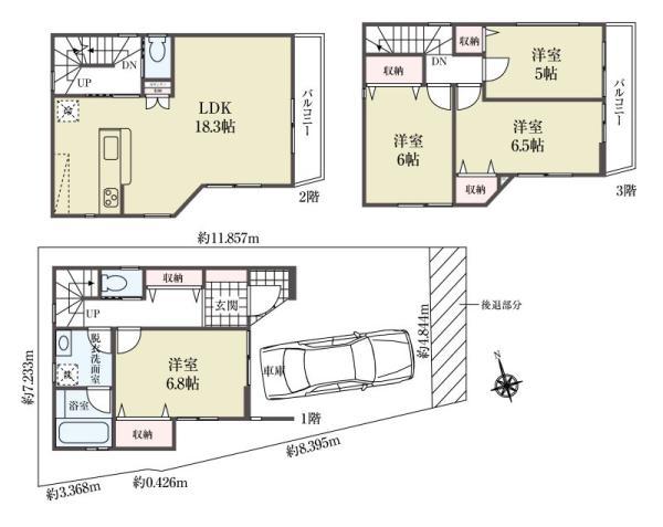
間取り・区画図
おすすめポイント
【全3区画 条件付き売地】
◇◆◇おすすめPOINT◇◆◇
・東武伊勢崎線『東向島』駅から徒歩6分。京成押上線『京成曳舟』駅から徒歩7分!2路線3駅利用可能な便利な交通アクセス♪
・お子様の教育施設やお買い物などの商業施設が徒歩圏内♪
・スーパー・コンビニ・ドラッグストアも歩いてすぐの便利な立地です♪
・専属の設計士によるプレゼンも可能です!
・お客様のお好きな間取りやカラーセレクトが対応可能!
・一戸建て参考プランを見ながらショールームがご見学可能です。
・どの区画も4LDK+カースペースにてご検討いただけます
・おかげさまでGoogle口コミ☆5.0 2025年11月末
◇◇ご見学予約受付中◇◇
・現地とショールームのご見学予約を受付中です。ご希望の日時をお伝え下さい。
建物プランのご相談も併せてできます。建物のご希望も併せてお伝えいただけると助かります。
【ハウスプラザ錦糸町店 0120-987-419】まで
お気軽にお問合せ下さい。
物件詳細
| 所在地 | 東京都墨田区東向島6丁目14-10 | ||
|---|---|---|---|
| 交通 | 東武伊勢崎線東向島駅 徒歩6分 東武伊勢崎線曳舟駅 徒歩11分 京成押上線京成曳舟駅 徒歩7分 |
||
| 総区画数 | 3区画 | ||
| 販売区画数 | 1区画 | ||
| 価格 | 5223.4万円 | ||
| 土地面積 | 73.45m2(22.21坪) セットバック | ||
| 土地権利 | 所有権 | ||
| 都市計画 | 市街化 | ||
| 用途地域 | 準工業地域 近隣商業地域 |
||
| 建ぺい率/容積率 | 80% / 300% 80% / 300% |
||
| 地目 | 宅地 | ||
| 接道 | 東側 4.00m 公道 | ||
| 私道負担 | 無 |
||
| 現況 | 更地 | ||
| 設備 | 都市ガス 公営水道 公共下水 | ||
| 引渡日 | 相談 | ||
| 取引形態 | 売主 | ||
| 備考 | 準防火地域、新防火区域、22m第3種高度地区、※建築条件付売地とは、土地売買契約後、3ヶ月以内に売主と建物の請負契約を結ぶ事を条件に契約します。 この期間中に建物請負契約を締結されなかった場合は、土地売買契約は白紙になり、受領した手付金等の土地代金は全額返金します。 | ||
| 更新日 | 2025年11月23日 | ||
| 次回更新予定日 | 2025年12月9日 | ||
| 取引有効期限 | 2025年12月09日 | ||
周辺環境
| 施設 | 墨田区立第三寺島小学校 211m 墨田区立寺島中学校 432m ローソン八広一丁目店 317m Olympic八広店 179m グルメシティ東向島駅前店 455m 中村病院 881m こくほ内科クリニック 255m 恩賜財団東京都済生会向島病院 312m 加藤診療所 361m ナースリー保育園 158m 墨田区東向島出張所 475m 八広公園 563m 東向島北公園 830m 第三寺島幼稚園 211m |
||
|---|---|---|---|
| 周辺の物件検索 | |||
現地見学会情報
お問い合わせ 錦糸町店
0120-987-419
























