葛飾区西亀有4丁目 中古一戸建て
お支払いローンシミュレーション
月々の支払い
0円
| 物件価格 | 万円 |
|---|---|
| 自己資金 (頭金) |
万円 |
| 金利 | % |
| 返済年数 |
40年(NEW) 35年(一般的) 30年 |
※返済金額はあくまでも目安の数値となります。詳しくは下記よりご相談ください。
資金計画相談お問い合わせ ▶ 本店(営業部)
0120-566-877
| 価格 | 4980万円 (税込) |
| 所在地 | 東京都葛飾区西亀有4丁目 |
| 沿線・駅 | 千代田常磐線亀有駅 徒歩9分 |
| 建物面積 | 77.84m2(23.54坪) |
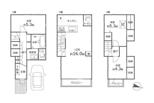
| 間取り | 3LDK |
間取り・区画図
おすすめポイント
今から見れます!【グーグル口コミ☆4.4】【諸条件相談可】
□■営業のオススメポイント□■
徒歩10分以内の生活圏
※ライフインフォメーション
・アリオ亀有・・・徒歩約6分
・区立亀青小学校・徒歩約3分
・亀有病院・・・・徒歩約7分
平日、夜間問わずお気軽にお問い合わせ下さい。
周辺環境やその他の物件情報も含めてご提案させて頂きますので是非一度ご相談下さいませ。
物件詳細
| 所在地 | 東京都葛飾区西亀有4丁目【住居表示】 | ||
|---|---|---|---|
| 交通 | 千代田常磐線亀有駅 徒歩9分 | ||
| 総戸数 | 1戸 | ||
| 販売戸数 | 1戸 | ||
| 価格 | 4980万円 (税込) | ||
| 土地面積 | 50.00m2(15.12坪) | ||
| 建物面積 | 77.84m2(23.54坪) | ||
| 土地権利 | 所有権 | ||
| 間取り | 3LDK | ||
| 築年月 | 平成19年5月 | ||
| 構造 | 木造 地上3階建て | ||
| 都市計画 | 市街化 | ||
| 用途地域 | 第1種住居地域 | ||
| 建ぺい率/容積率 | 60% / 200% | ||
| 地目 | 宅地 | ||
| 接道 | 東側 6.00m 公道 | ||
| 私道負担 | 無 |
||
| 現況 | 完成済 | ||
| 設備 | 都市ガス 公営水道 公共下水 | ||
| 入居年月 | 相談 | ||
| 取引形態 | 媒介 | ||
| 備考 | 2025/09 内装リフォーム済・キッチン・浴室・トイレ・壁・洗面所・外壁洗浄・塗装 準防火地域、高度地区、宅地造成及び特定盛土等規制法、【現況】空室 |
||
| 更新日 | 2025年10月3日 | ||
| 次回更新予定日 | 2025年11月19日 | ||
| 取引有効期限 | 2025年11月19日 | ||
周辺環境
| 施設 | 葛飾区立中之台小学校 190m 葛飾区立一之台中学校 350m ミニストップ 東和2丁目店 277m セブンイレブン 葛飾亀有4丁目店 521m オリンピック亀有店 110m イト―ヨーカドー亀有駅前店 650m ビッグ・エー足立東和店 336m 東京都立東部地域病院 350m 大貫内科クリニック 297m 曳舟川親水公園 681m 北三谷公園 677m 砂原保育園 320m このえ西亀有保育園 149m ミアヘルサ保育園ひびき亀有 84m |
||
|---|---|---|---|
| 周辺の物件検索 | |||
現地見学会情報
お支払いローンシミュレーション
月々の支払い
0円
| 物件価格 | 万円 |
|---|---|
| 自己資金 (頭金) |
万円 |
| 金利 | % |
| 返済年数 |
40年(NEW) 35年(一般的) 30年 |
※返済金額はあくまでも目安の数値となります。詳しくは下記よりご相談ください。
資金計画相談お問い合わせ 本店(営業部)
0120-566-877






































