葛飾区青戸8丁目 新築一戸建て
月々の支払い
0円
| 物件価格 | 万円 |
|---|---|
| 自己資金 (頭金) |
万円 |
| 金利 | % |
| 返済年数 |
40年(NEW) 35年(一般的) 30年 |
※返済金額はあくまでも目安の数値となります。詳しくは下記よりご相談ください。
資金計画相談お問い合わせ ▶ 青戸店
0120-180-344
| 価格 | 4980万円 (税込) |
| 所在地 | 東京都葛飾区青戸8丁目12 |
| 沿線・駅 | 千代田常磐線亀有駅 徒歩15分 京成本線青砥駅 徒歩21分 京成押上線青砥駅バス8分 「修徳学園入口」バス停 停歩5分 |
| 建物面積 | 87.15m2(26.36坪) |
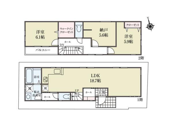
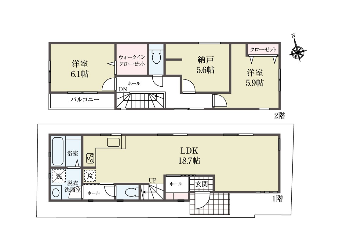
| 間取り | 2LDK+S |
間取り・区画図
おすすめポイント
【お取り扱いは弊社のみ】亀有駅徒歩15分の2階建て1階LDKのおうち
~おすすめポイント~
・常磐緩行線「亀有駅」まで徒歩15分
・京成本線、京成押上線「青砥駅」も利用可能
3路線利用できる立地です。
・コンビニ、スーパーが近く、アリオ亀有までも徒歩10分
買い物環境良好な立地です。
・2階建て1階リビングの大道プラン
・家族の集まるLDKは18.7帖。
・2階主寝室には大きなウォークインクローゼットがあります。
■■■■■ ご見学予約受付中 ■■■■■
ご希望があれば周辺物件もご一緒にご案内できます。
現地集合・現地解散も可能。営業車での送迎も可能です。
お問い合わせは0120-180-344までお気軽にご連絡下さい。
ハウスプラザ青戸店
物件詳細
| 所在地 | 東京都葛飾区青戸8丁目12 | ||
|---|---|---|---|
| 交通 | 千代田常磐線亀有駅 徒歩15分 京成本線青砥駅 徒歩21分 京成押上線青砥駅バス8分 「修徳学園入口」バス停 停歩5分 |
||
| 総戸数 | 1戸 | ||
| 販売戸数 | 1戸 | ||
| 価格 | 4980万円 (税込) | ||
| 土地面積 | 71.94m2(21.76坪) | ||
| 建物面積 | 87.15m2(26.36坪) | ||
| 土地権利 | 所有権 | ||
| 間取り | 2LDK+S | ||
| 築年月 | 令和8年1月 | ||
| 構造 | 木造 地上2階建て | ||
| 都市計画 | 市街化 | ||
| 用途地域 | 第1種住居地域 | ||
| 建ぺい率/容積率 | 70% / 160% | ||
| 地目 | 宅地 | ||
| 接道 | 南側 3.54m 私道 | ||
| 私道負担 | 有(面積:21.17m²(6.40坪)) |
||
| 現況 | 完成済 | ||
| 設備 | 都市ガス 公営水道 公共下水 | ||
| 入居年月 | 即時 | ||
| 取引形態 | 媒介 | ||
| 備考 | 第KS125-3120-51471号 準防火地域、第2種高度地区、宅地造成工事規制区域、【接道】3.54m~4m私道、※カースペースはございません。 | ||
| 更新日 | 2026年2月2日 | ||
| 次回更新予定日 | 2026年2月18日 | ||
| 取引有効期限 | 2026年02月18日 | ||
周辺環境
| 施設 | 葛飾区立亀青小学校 140m 葛飾区立亀有中学校 730m セブンイレブン 葛飾青戸8丁目店 370m コープ亀有店 520m アリオ亀有 720m 亀有中央病院 210m 亀有みんなのクリニック 360m ウェルシア葛飾亀有店 600m すまいる亀有学童保育クラブ 410m 亀有二丁目公園 320m 若草児童遊園 80m 修徳学園中学校・高等学校 180m まなびの保育園 亀有 680m 葛飾やまびこ幼稚園 210m |
||
|---|---|---|---|
| 周辺の物件検索 | |||
現地見学会情報
月々の支払い
0円
| 物件価格 | 万円 |
|---|---|
| 自己資金 (頭金) |
万円 |
| 金利 | % |
| 返済年数 |
40年(NEW) 35年(一般的) 30年 |
※返済金額はあくまでも目安の数値となります。詳しくは下記よりご相談ください。
資金計画相談お問い合わせ 青戸店
0120-180-344










































