市川市宝1丁目 新築一戸建て
月々の支払い
0円
| 物件価格 | 万円 |
|---|---|
| 自己資金 (頭金) |
万円 |
| 金利 | % |
| 返済年数 |
40年(NEW) 35年(一般的) 30年 |
※返済金額はあくまでも目安の数値となります。詳しくは下記よりご相談ください。
資金計画相談お問い合わせ ▶ 浦安店
0120-980-611
| 価格 | 4999万円 (税込) |
| 所在地 | 千葉県市川市宝1丁目 |
| 沿線・駅 | 東西線妙典駅 徒歩19分 JR京葉線市川塩浜駅バス13分 「幸一丁目」バス停 停歩3分 JR中央・総武線本八幡駅バス23分 「行徳駅」バス停 停歩20分 |
| 建物面積 | 97.33m2(29.44坪) うち1F車庫 面積:10.39m2 |
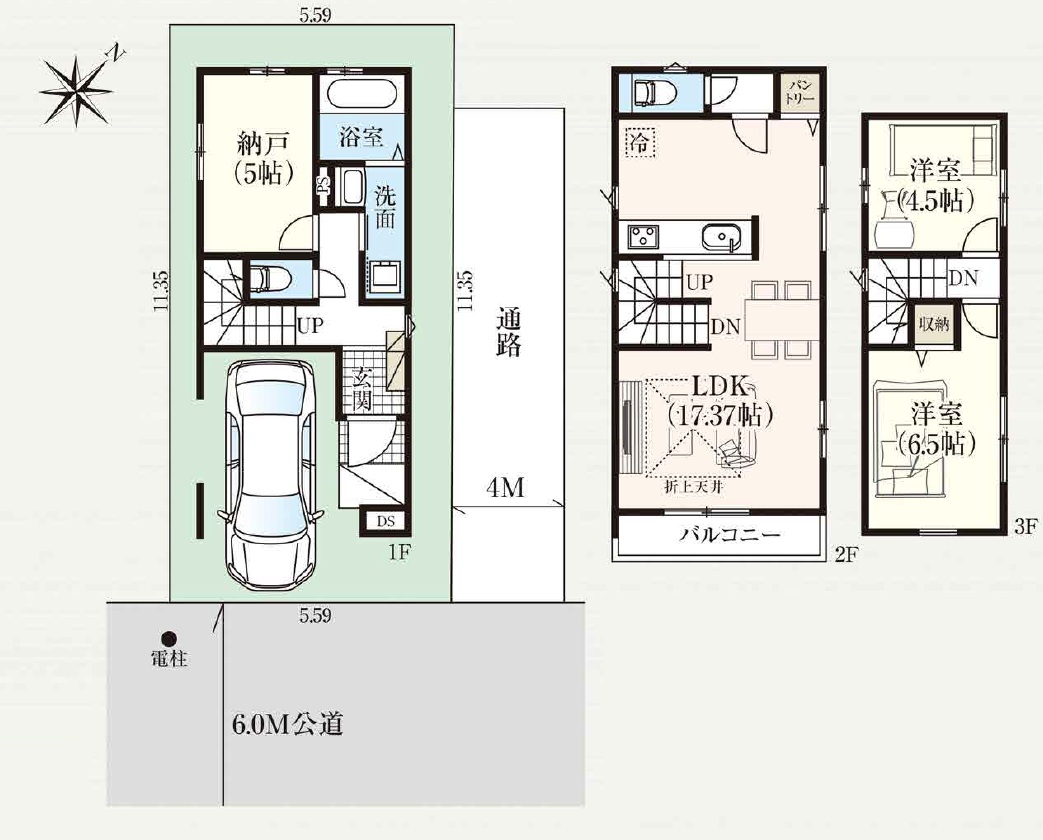
| 間取り | 2LDK+S |
間取り・区画図
おすすめポイント
【本日見学できます!】
南東向きの陽当たり良好住宅!
~ おすすめポイント ~
〇スーパーやコンビニ等のお買い物施設が徒歩4分圏内にある生活環境良好な立地!
〇小学校や公園、幼稚園等の施設が徒歩6分圏内にある子育て環境にも適した住宅!
〇浴室乾燥機や食器洗浄機等の設備が充実してます!
〇北東側隣地が通路となっている開放感を味わえる住宅!
〇窓が多く光が入り込む明るい住宅!
〇キッチン後ろにはパントリーがある家事ラクプランです。
〇デザインや間取にこだわった生活のしやすい住宅です。
〇耐震等級3を取得した地震に強い住宅!
ぜひ1度ご見学ください。
24時間365日ご対応可能です!
お気軽にお問合せください。
物件詳細
| 所在地 | 千葉県市川市宝1丁目23(地番) | ||
|---|---|---|---|
| 交通 | 東西線妙典駅 徒歩19分 JR京葉線市川塩浜駅バス13分 「幸一丁目」バス停 停歩3分 JR中央・総武線本八幡駅バス23分 「行徳駅」バス停 停歩20分 |
||
| 総戸数 | 1戸 | ||
| 販売戸数 | 1戸 | ||
| 価格 | 4999万円 (税込) | ||
| 土地面積 | 63.69m2(19.26坪) | ||
| 建物面積 | 97.33m2(29.44坪) うち1F車庫 面積:10.39m2 | ||
| 土地権利 | 所有権 | ||
| 間取り | 2LDK+S | ||
| 築年月 | 令和8年2月 | ||
| 構造 | 木造 地上3階建て | ||
| 都市計画 | 市街化 | ||
| 用途地域 | 第1種中高層住居専用地域 | ||
| 建ぺい率/容積率 | 60% / 200% | ||
| 地目 | 宅地 | ||
| 接道 | 南東側 6.00m 公道 | ||
| 私道負担 | 有(面積:9.14m²(2.76坪)) |
||
| 現況 | 未完成 | ||
| 設備 | 都市ガス 公営水道 公共下水 | ||
| 入居年月 | 期日指定 2026年2月下旬 | ||
| 取引形態 | 媒介 | ||
| 備考 | 第R07SHC116945号 第一種高度地区、法第22条区域、日影制限有、宅地造成等工事規制区域 | ||
| 更新日 | 2025年11月1日 | ||
| 次回更新予定日 | 2025年11月19日 | ||
| 取引有効期限 | 2025年11月19日 | ||
周辺環境
| 施設 | 市川市立幸小学校 422m 市川市立妙典中学校 914m ファミリーマート 市川宝二丁目店 434m 業務スーパー 行徳店 288m ワイズディスカ末広店 525m 行徳総合病院 798m 友康会行徳中央クリニック 937m 近藤小児科 883m 塩焼中央公園 369m 南沖公園 1075m 愛泉保育園 522m |
||
|---|---|---|---|
| 周辺の物件検索 | |||
現地見学会情報
月々の支払い
0円
| 物件価格 | 万円 |
|---|---|
| 自己資金 (頭金) |
万円 |
| 金利 | % |
| 返済年数 |
40年(NEW) 35年(一般的) 30年 |
※返済金額はあくまでも目安の数値となります。詳しくは下記よりご相談ください。
資金計画相談お問い合わせ 浦安店
0120-980-611


































