江戸川区南葛西3丁目 新築一戸建て/全3棟 1号棟
月々の支払い
0円
| 物件価格 | 万円 |
|---|---|
| 自己資金 (頭金) |
万円 |
| 金利 | % |
| 返済年数 |
40年(NEW) 35年(一般的) 30年 |
※返済金額はあくまでも目安の数値となります。詳しくは下記よりご相談ください。
資金計画相談お問い合わせ ▶ 船堀店
0120-978-305
| 価格 | 8290万円 (税込) |
| 所在地 | 東京都江戸川区南葛西3丁目 |
| 沿線・駅 | 東西線葛西駅 徒歩20分 JR京葉線葛西臨海公園駅バス6分 「総合レクリエーション」バス停 停歩8分 都営新宿線一之江駅バス15分 「総合レクリエーション」バス停 停歩8分 |
| 建物面積 | 102.46m2(30.99坪) |
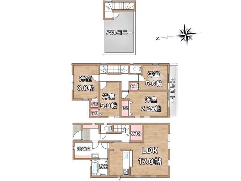
| 間取り | 4LDK |
間取り・区画図
おすすめポイント
モデルハウスご案内いたします!
水廻り集約!生活のしやすい2階建て邸宅♪
◆稼働効率の良い1階水廻り集約!
◆大きな洗面室はLDKからも玄関ホールからも入れます。
◆玄関から居室やLDKが見えないので急な来客でもプライバシーが守られます。
◆1階にウォークインクローゼットを設置!季節物や防災対策グッズ!家電などたくさん収納できて便利です。
◆玄関近くに洗面室&浴室があるので帰宅後の手洗いうがいがしやすいです。
◆おうちにいながらアウトドア感を楽しめる大きなバルコニー!
頭金0円、月々のお支払いシュミレーション当日可能です。
お気軽にお問い合わせください!
物件詳細
| 所在地 | 東京都江戸川区南葛西3丁目(地番) | ||
|---|---|---|---|
| 交通 | 東西線葛西駅 徒歩20分 JR京葉線葛西臨海公園駅バス6分 「総合レクリエーション」バス停 停歩8分 都営新宿線一之江駅バス15分 「総合レクリエーション」バス停 停歩8分 |
||
| 総戸数 | 3戸 | ||
| 販売戸数 | 1戸 | ||
| 価格 | 8290万円 (税込) | ||
| 土地面積 | 90.30m2(27.31坪) | ||
| 建物面積 | 102.46m2(30.99坪) | ||
| 土地権利 | 所有権 | ||
| 間取り | 4LDK | ||
| 築年月 | 令和7年12月 | ||
| 構造 | 木造 地上2階建て | ||
| 都市計画 | 市街化 | ||
| 用途地域 | 第1種住居地域 | ||
| 建ぺい率/容積率 | 60% / 300% | ||
| 地目 | 宅地 | ||
| 接道 | 北側 30.00m 公道 西側 6.00m 公道 |
||
| 私道負担 | 無 |
||
| 現況 | 完成済 | ||
| 設備 | 都市ガス 公営水道 公共下水 | ||
| 入居年月 | 期日指定 2025年12月下旬 | ||
| 取引形態 | 媒介 | ||
| 備考 | 第25UDI1W建05020号 景観法、航空法、準防火地域、日影制限有、第3種高度地区、下水道処理区域、宅地造成等工事規制区域、最低敷地面積(70平米) | ||
| 更新日 | 2025年10月2日 | ||
| 次回更新予定日 | 2025年11月19日 | ||
| 取引有効期限 | 2025年11月19日 | ||
周辺環境
| 施設 | 江戸川区立臨海小学校 914m 江戸川区立南葛西第二中学校 1161m セブンイレブン 南葛西1丁目店 599m まいばすけっと 南葛西1丁目店 423m Ario(アリオ)葛西 1288m かまかみ医院 776m 村澤医院 264m 葛西みなみ診療所 634m ベルク 江戸川臨海店 490m バウ動物病院 526m 東武ストア 南葛西店 701m ファミリースポーツ広場 401m フラワーガーデン 699m 堀江保育園 556m |
||
|---|---|---|---|
| 周辺の物件検索 | |||
現地見学会情報
月々の支払い
0円
| 物件価格 | 万円 |
|---|---|
| 自己資金 (頭金) |
万円 |
| 金利 | % |
| 返済年数 |
40年(NEW) 35年(一般的) 30年 |
※返済金額はあくまでも目安の数値となります。詳しくは下記よりご相談ください。
資金計画相談お問い合わせ 船堀店
0120-978-305




































