浦安市堀江2丁目 新築一戸建て
月々の支払い
0円
| 物件価格 | 万円 |
|---|---|
| 自己資金 (頭金) |
万円 |
| 金利 | % |
| 返済年数 |
40年(NEW) 35年(一般的) 30年 |
※返済金額はあくまでも目安の数値となります。詳しくは下記よりご相談ください。
資金計画相談お問い合わせ ▶ 浦安店
0120-980-611
| 価格 | 6798万円 (税込) |
| 所在地 | 千葉県浦安市堀江2丁目 |
| 沿線・駅 | 東西線浦安駅 徒歩15分 JR京葉線新浦安駅 徒歩29分 JR京葉線舞浜駅バス16分 「南小入口」バス停 停歩1分 |
| 建物面積 | 100.92m2(30.52坪) |
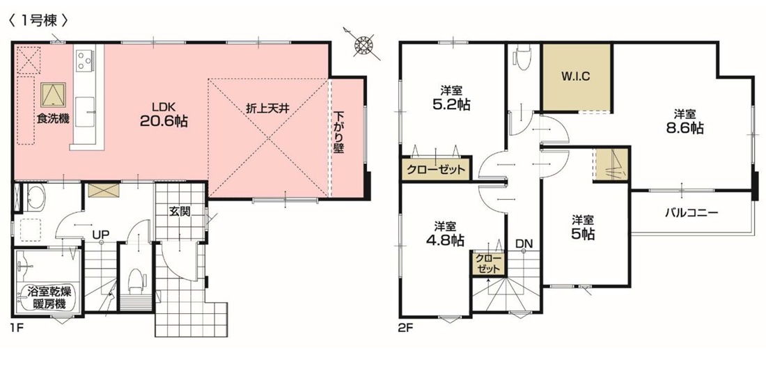
| 間取り | 4LDK |
間取り・区画図
おすすめポイント
【開放感を味わえるデザイナーズハウス】
○2つの道路に接している為開放感を味わえる立地
○南向きの為陽当たり良好!
○デザインや設備、間取にこだわった住宅!
~ おすすめポイント ~
〇スーパーやコンビニ等のお買い物施設まで徒歩10分で行くことができる生活環境の良い立地です。
〇徒歩10分圏内には小学校や公園、保育園、図書館等の施設がある為子育て環境が良好な立地です!
〇南向きの陽当たりが良好住宅!
〇建物はや食器洗浄機、浴室乾燥機等の設備が充実!
〇デザインや間取にこだわった住宅!
〇浦安の象徴とも言われるテーマパークまでバスに乗って約25分で行くことができます。
〇収納スペースが豊富な住宅!
24時間365日ご対応可能です!
お気軽にお問合せください。
物件詳細
| 所在地 | 千葉県浦安市堀江2丁目23 | ||
|---|---|---|---|
| 交通 | 東西線浦安駅 徒歩15分 JR京葉線新浦安駅 徒歩29分 JR京葉線舞浜駅バス16分 「南小入口」バス停 停歩1分 |
||
| 総戸数 | 1戸 | ||
| 販売戸数 | 1戸 | ||
| 価格 | 6798万円 (税込) | ||
| 土地面積 | 96.45m2(29.17坪) | ||
| 建物面積 | 100.92m2(30.52坪) | ||
| 土地権利 | 所有権 | ||
| 間取り | 4LDK | ||
| 築年月 | 令和7年4月 | ||
| 構造 | 木造 地上2階建て | ||
| 都市計画 | 市街化 | ||
| 用途地域 | 第1種住居地域 | ||
| 建ぺい率/容積率 | 60% / 200% | ||
| 地目 | 宅地 | ||
| 接道 | 東側 5.40m 公道 | ||
| 私道負担 | 有(面積:95.15m²(28.78坪)×持分:748/2000) |
||
| 現況 | 完成済 | ||
| 設備 | 都市ガス 公営水道 公共下水 | ||
| 入居年月 | 即時 | ||
| 取引形態 | 媒介 | ||
| 備考 | 第24UDI1W建07506号 法第22条区域、第2種高度地区、日影制限有、都市計画法第53条許可申請、※南西側約3.9m法定外道路 | ||
| 更新日 | 2025年11月3日 | ||
| 次回更新予定日 | 2025年11月19日 | ||
| 取引有効期限 | 2025年11月19日 | ||
周辺環境
| 施設 | 浦安市立南小学校 276m 浦安市立堀江中学校 882m ファミリーマート 浦安堀江三丁目店 114m スーパーアタック浦安堀江店 142m アクロスプラザ浦安東野 1260m 浦安ファミリークリニック 129m 浦安ふじみクリニック 828m マルエツ 浦安店 560m 富士見ちびっこ広場 220m 江川街区公園 500m 愛和元町保育園 305m |
||
|---|---|---|---|
| 周辺の物件検索 | |||
現地見学会情報
月々の支払い
0円
| 物件価格 | 万円 |
|---|---|
| 自己資金 (頭金) |
万円 |
| 金利 | % |
| 返済年数 |
40年(NEW) 35年(一般的) 30年 |
※返済金額はあくまでも目安の数値となります。詳しくは下記よりご相談ください。
資金計画相談お問い合わせ 浦安店
0120-980-611







































