江戸川区北篠崎2丁目 新築一戸建て
月々の支払い
0円
| 物件価格 | 万円 |
|---|---|
| 自己資金 (頭金) |
万円 |
| 金利 | % |
| 返済年数 |
40年(NEW) 35年(一般的) 30年 |
※返済金額はあくまでも目安の数値となります。詳しくは下記よりご相談ください。
資金計画相談お問い合わせ ▶ 篠崎店
0120-664-511
| 価格 | 5790万円 (税込) |
| 所在地 | 東京都江戸川区北篠崎2丁目 |
| 沿線・駅 | 都営新宿線篠崎駅 徒歩23分 JR中央・総武線小岩駅バス16分 「菊地外科・胃腸科」バス停 停歩4分 JR総武本線新小岩駅バス20分 「鹿骨5丁目」バス停 停歩12分 |
| 建物面積 | 90.35m2(27.33坪) |
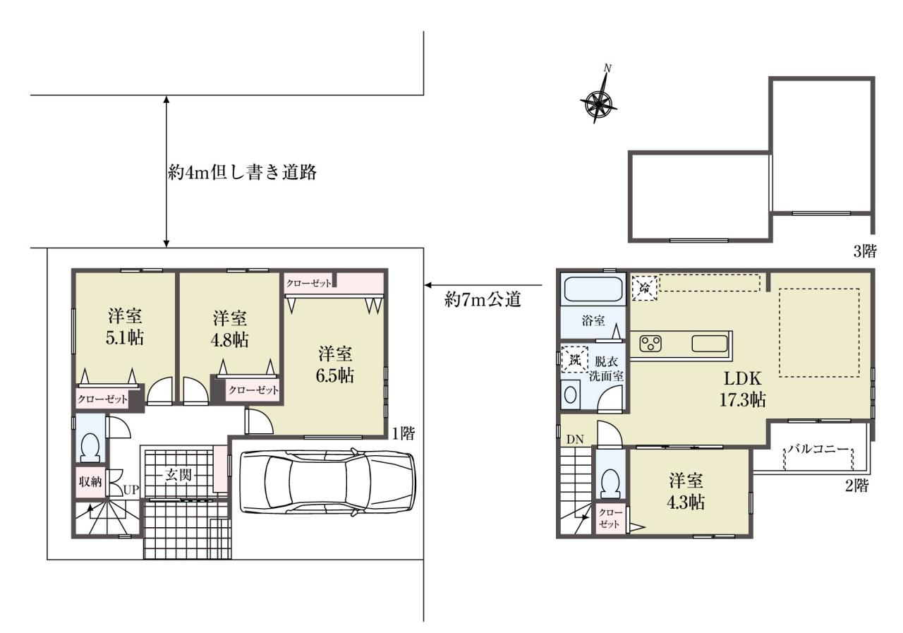
| 間取り | 4LDK |
間取り・区画図
おすすめポイント
即日ご案内致します!ハウスプラザ篠崎店
【おかげさまでグーグル口コミ☆4.9】
【デザイナーズハウス】【2階建て4LDK】【住宅設備充実・収納充実】
【勾配天井】【角地のような開放感】
【営業が感じたここがオススメポイント】
・まずは何といっても角地のような開放感に佇む2階建て4LDK車庫付き新築戸建て
・建物完成しており、いつでもご見学いただけます
・外観内装にこだわりデザイナーズハウス
・前面道路は車通りの少ない安心安全な安心安全な住環境です
・玄関を開けると広々ホールが気持ちいい空間
・各お部屋の広さは十分確保しており、収納スペースは充実
・2階リビングフロアは17帖超えの広々とした空間+勾配天井採用で開放感アップ
・2階リビング水廻り集約のママ楽家事動線
・食洗器付きシステムキッチンや床暖房、浴室換気乾燥機など住宅設備は充実
【生活環境良好な住環境】
江戸川区には住宅地域が広がり、区内には幼稚園や保育園、小中学校なども充実しており、子育て世代にも優しい環境です。大小さまざまな公園が存在し、自然が豊かで過ごしやすい環境が整っています
物件詳細
| 所在地 | 東京都江戸川区北篠崎2丁目1 | ||
|---|---|---|---|
| 交通 | 都営新宿線篠崎駅 徒歩23分 JR中央・総武線小岩駅バス16分 「菊地外科・胃腸科」バス停 停歩4分 JR総武本線新小岩駅バス20分 「鹿骨5丁目」バス停 停歩12分 |
||
| 総戸数 | 1戸 | ||
| 販売戸数 | 1戸 | ||
| 価格 | 5790万円 (税込) | ||
| 土地面積 | 80.28m2(24.28坪) | ||
| 建物面積 | 90.35m2(27.33坪) | ||
| 土地権利 | 所有権 | ||
| 間取り | 4LDK | ||
| 築年月 | 令和7年10月 | ||
| 構造 | 木造 地上2階建て | ||
| 都市計画 | 市街化 | ||
| 用途地域 | 第1種中高層住居専用地域 | ||
| 建ぺい率/容積率 | 60% / 150% | ||
| 地目 | 宅地 | ||
| 接道 | 東側 7.00m 公道 | ||
| 私道負担 | 有(面積:19.93m²(6.02坪)) |
||
| 現況 | 完成済 | ||
| 設備 | 都市ガス 公営水道 公共下水 | ||
| 入居年月 | 即時 | ||
| 取引形態 | 媒介 | ||
| 備考 | 第BNV確済25-149号 景観法、準防火地域、宅地造成工事規制区域、敷地面積最低限度有(70平米)、日影制限有、16m第二種高度地区、53条区域、【北側接道】建築基準法外道路:幅員4m(私道) | ||
| 更新日 | 2025年11月6日 | ||
| 次回更新予定日 | 2025年12月8日 | ||
| 取引有効期限 | 2025年12月08日 | ||
周辺環境
| 施設 | 江戸川区立篠崎第五小学校 443m 江戸川区立小岩第二中学校 914m ジェーソン 鹿骨店 563m まちの便利スーパー ベンリー西篠崎店 401m セブン-イレブン 江戸川鹿骨3丁目店 393m セブン-イレブン 江戸川鹿骨店 476m ウエルシア 江戸川鹿骨店 987m 東小岩一丁目公園 517m 篠崎公園 558m 医療法人三和会 東京東病院 423m 押上第二幼稚園 929m こじか幼稚園 730m 江戸川区立 南小岩保育園 1269m 西篠崎おひさま保育園 685m |
||
|---|---|---|---|
| 周辺の物件検索 | |||
現地見学会情報
月々の支払い
0円
| 物件価格 | 万円 |
|---|---|
| 自己資金 (頭金) |
万円 |
| 金利 | % |
| 返済年数 |
40年(NEW) 35年(一般的) 30年 |
※返済金額はあくまでも目安の数値となります。詳しくは下記よりご相談ください。
資金計画相談お問い合わせ 篠崎店
0120-664-511
























































