荒川区町屋7丁目 新築一戸建て
月々の支払い
0円
| 物件価格 | 万円 |
|---|---|
| 自己資金 (頭金) |
万円 |
| 金利 | % |
| 返済年数 |
40年(NEW) 35年(一般的) 30年 |
※返済金額はあくまでも目安の数値となります。詳しくは下記よりご相談ください。
資金計画相談お問い合わせ ▶ 日暮里店
0120-417-081
| 価格 | 7280万円 (税込) |
| 所在地 | 東京都荒川区町屋7丁目 |
| 沿線・駅 | 千代田線町屋駅 徒歩16分 京成本線町屋駅 徒歩17分 都電荒川線荒川七丁目駅 徒歩15分 |
| 建物面積 | 120.47m2(36.44坪) |
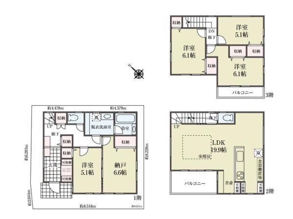
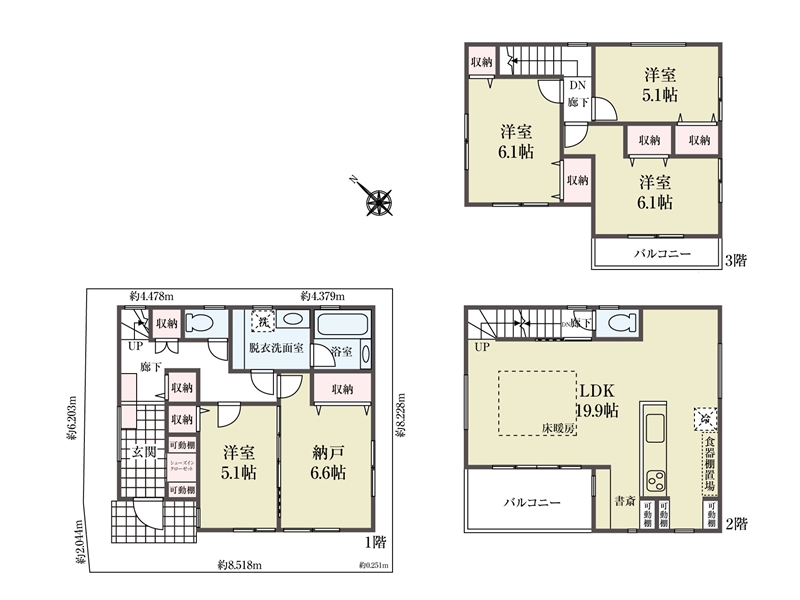
| 間取り | 4LDK+S |
間取り・区画図
おすすめポイント
【即日ご案内可能】モデルハウスで実際の設備をご確認出来ます。
~おすすめポイント~
■約19.9帖の床暖房付きの広々としたリビング
■2階リビングには書斎スペースを設置。
■全5部屋あり、1階の2部屋は可動間仕切りを外せば11.7帖になります。
■とにかく収納が豊富です!!
■パントリー・SICの他、各居室収納付きでお部屋がスッキリ。
■食洗器付きシステムキッチンや床暖房、浴室乾燥暖房機など住宅設備が充実!
■前面道路は車通りの少ない安心安全な住環境です。
■千代田線「町屋」駅 徒歩16分の立地
【現地のご案内・資料請求】
物件のお問い合わせはフリーダイヤル【0120-417-081】まで!
ご自宅までの送迎も行っております♪
お気軽にご連絡下さい。
物件詳細
| 所在地 | 東京都荒川区町屋7丁目13 | ||
|---|---|---|---|
| 交通 | 千代田線町屋駅 徒歩16分 京成本線町屋駅 徒歩17分 都電荒川線荒川七丁目駅 徒歩15分 |
||
| 総戸数 | 1戸 | ||
| 販売戸数 | 1戸 | ||
| 価格 | 7280万円 (税込) | ||
| 土地面積 | 73.28m2(22.16坪) | ||
| 建物面積 | 120.47m2(36.44坪) | ||
| 土地権利 | 所有権 | ||
| 間取り | 4LDK+S | ||
| 築年月 | 令和8年1月 | ||
| 構造 | 木造 地上3階建て | ||
| 都市計画 | 市街化 | ||
| 用途地域 | 工業地域 | ||
| 建ぺい率/容積率 | 70% / 200% | ||
| 地目 | 宅地 | ||
| 接道 | 南西側 4.00m 私道 | ||
| 私道負担 | 有(面積:193.26m²(58.46坪)×持分:995/19326) |
||
| 現況 | 未完成 | ||
| 設備 | 都市ガス 公営水道 公共下水 | ||
| 入居年月 | 期日指定 2026年2月下旬 | ||
| 取引形態 | 媒介 | ||
| 備考 | 第25UDI1T建01687号 準防火地域、宅地造成工事規制区域、敷地面積最低限度60平米、中高層階住居専用地区 | ||
| 更新日 | 2026年1月30日 | ||
| 次回更新予定日 | 2026年2月14日 | ||
| 取引有効期限 | 2026年02月14日 | ||
周辺環境
| 施設 | 荒川区立第七峡田小学校 225m 荒川区立第五中学校 744m ファミリーマート 町屋八丁目店 254m ココスナカムラ町屋店 529m SUNPOP MACHIYA(サンポップマチヤ) 1219m 桜会病院 1029m 荒川病院 400m コモディイイダ 町屋店 670m まいばすけっと 町屋3丁目店 737m 荒川北町屋郵便局 450m カナリヤ保育園 538m 町屋七丁目公園 190m 尾竹橋公園 814m 荒川区立町屋幼稚園 277m |
||
|---|---|---|---|
| 周辺の物件検索 | |||
現地見学会情報
月々の支払い
0円
| 物件価格 | 万円 |
|---|---|
| 自己資金 (頭金) |
万円 |
| 金利 | % |
| 返済年数 |
40年(NEW) 35年(一般的) 30年 |
※返済金額はあくまでも目安の数値となります。詳しくは下記よりご相談ください。
資金計画相談お問い合わせ 日暮里店
0120-417-081















































