江戸川区鹿骨3丁目 新築一戸建て/全2棟 B号棟
物件ID:2602S031-02
| 交通 | 都営新宿線篠崎駅 徒歩21分 JR中央・総武線小岩駅バス19分 京成バス 「鹿骨3丁目」バス停 停歩2分 JR総武本線新小岩駅バス23分 京成バス 「前沼橋」バス停 停歩3分 |
||
|---|---|---|---|
| 住所 | 東京都江戸川区鹿骨3丁目 | ||
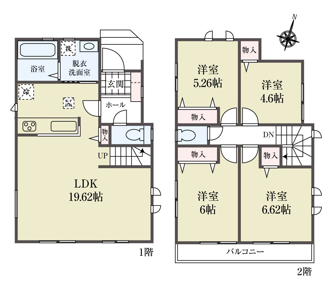
| 建物面積 | 94.81m2(28.68坪) | 間取り | 4LDK |
| 土地面積 | 84.89m2(25.67坪) | 築年月 | 令和8年4月 |
【物件詳細】●建物構造 木造 地上2階建て ●建築確認番号 第HPA-25-15234-1号他 ●建ぺい率/容積率 60% / 150% ●接道状況 北側 7.00m 公道
東側 7.00m 公道 ●私道面積 無 ●現況 相談未完成 ●地目 宅地 ●セットバック 不要 ●土地権利 所有権 ●用途地域 第1種中高層住居専用地域 ●都市計画 市街化 ●国土法提出 不要 ●設備・条件 都市ガス 公営水道 公共下水 陽当り良好、眺望良好、電気、2沿線以上利用可、複数路線利用可、分譲地内、整形地、角地、平坦地、下水道、前面道路6m以上、閑静な住宅地、上水道、食器洗乾燥機、対面式キッチン、システムキッチン、浄水器、給湯、追焚き給湯、シャワー、浴室に窓、浴室暖房、浴室乾燥機、バス1坪以上、温水洗浄便座、トイレ2ヶ所、バストイレ別、節水型トイレ、室内洗濯機置場、シャワー付き洗面化粧台、独立洗面台、収納、全居室収納スペース、パントリー、納戸、バルコニー、2面採光、ダウンライト、フローリング、全居室フローリング、シャッター雨戸、Low-Eガラス、全居室複層ガラスか複層サッシ、TVインターホン、ディンプルキー、火災警報器(報知機)、リビングイン階段、LDK15帖以上、24時間換気システム、外壁サイディング、スケルトンインフィル、省エネラベル、フラット35S適合証明書、設計住宅性能評価取得、住宅性能評価、建設住宅性能評価取得(新築時) ●備考 景観法、航空法、宅地造成工事規制区域、準防火地域、敷地面積最低限度有(70平米)、日影制限有、第二種高度地区、53条区域
業務スーパー 鹿骨店173m/まちの便利スーパー ベンリー西篠崎店249m/ セブン-イレブン 江戸川鹿骨3丁目店278m/ウエルシア 江戸川鹿骨店444m/鹿骨おひさま保育園771m/こじか幼稚園166m/押上第二幼稚園1028m/鹿骨第三広場320m/鹿骨町児童遊園331m/医療法人三和会 東京東病院401m/村上医院569m/西篠崎おひさま保育園425m ●駐車場 有 ●学区 江戸川区立鹿骨東小学校 321m・江戸川区立鹿骨中学校 719m ●引渡時期 期日指定 2026年4月下旬 ●取引態様 媒介 ●情報変更日 2026年2月16日 ●次回更新予定日 2026年3月3日
東側 7.00m 公道
業務スーパー 鹿骨店173m/まちの便利スーパー ベンリー西篠崎店249m/ セブン-イレブン 江戸川鹿骨3丁目店278m/ウエルシア 江戸川鹿骨店444m/鹿骨おひさま保育園771m/こじか幼稚園166m/押上第二幼稚園1028m/鹿骨第三広場320m/鹿骨町児童遊園331m/医療法人三和会 東京東病院401m/村上医院569m/西篠崎おひさま保育園425m

