江戸川区東小岩6丁目 新築一戸建て/全2棟
物件ID:2601S154
| 交通 | JR中央・総武線小岩駅 徒歩8分 京成本線京成小岩駅バス4分 京成バス 「南小岩8丁目」バス停 停歩4分 北総鉄道新柴又駅バス10分 京成バス 「南小岩8丁目」バス停 停歩4分 |
||
|---|---|---|---|
| 住所 | 東京都江戸川区東小岩6丁目 | ||
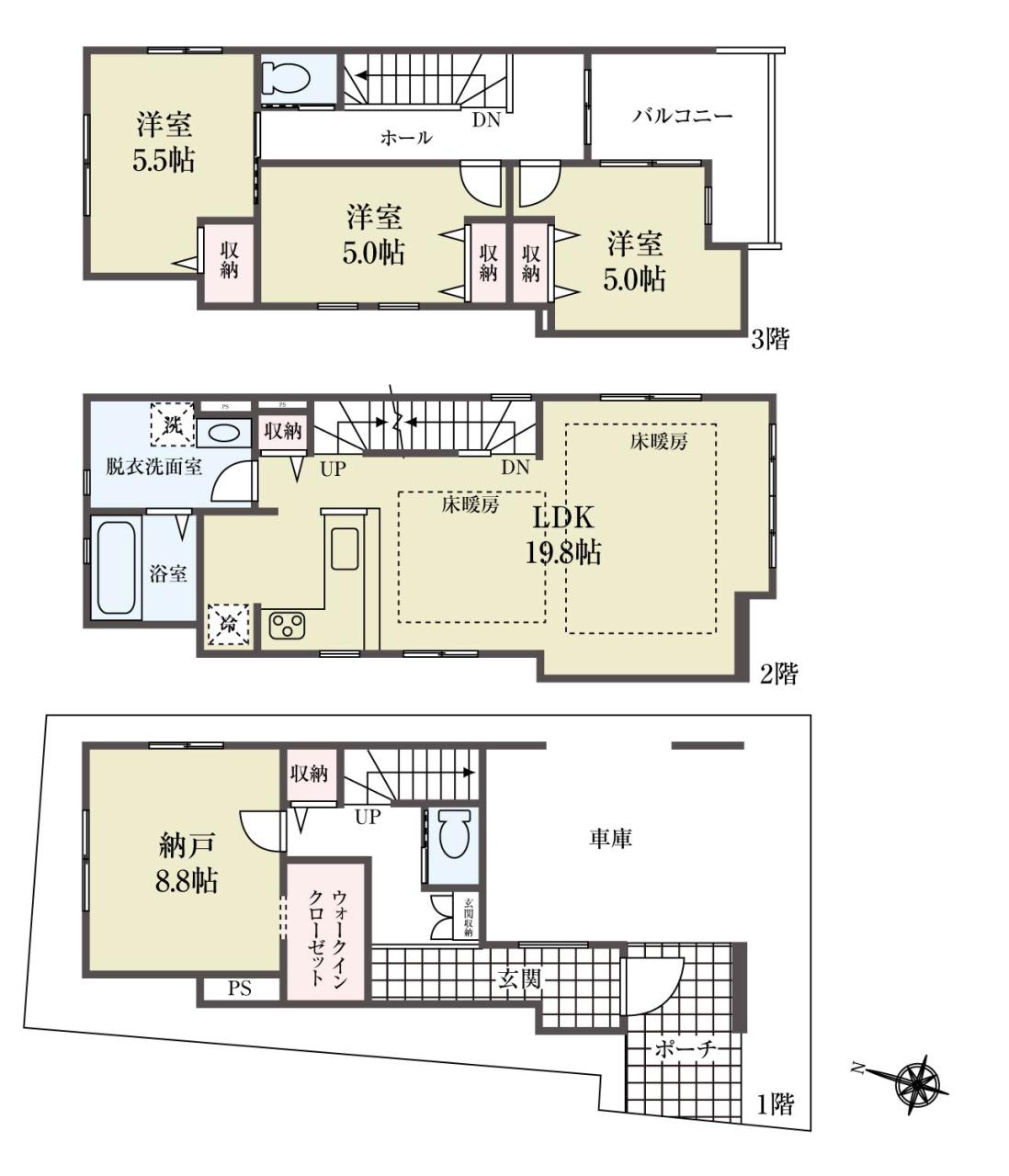
| 建物面積 | 126.30m2(38.2坪)~135.70m2(41.04坪) | 間取り | 3LDK~4LDK |
| 土地面積 | 70.87m2(21.43坪)~72.24m2(21.85坪) | 築年月 | 令和8年5月 |
【物件詳細】●建物構造 木造 地上3階 ●建築確認番号 第KBI-YKH25-10-2916号 他 ●建ぺい率/容積率 ●接道状況
南側 5.45m 公道 ●私道面積 無 ●現況 相談未完成 ●地目 宅地 ●セットバック 不要 ●土地権利 所有権 ●用途地域 第1種住居地域 ●都市計画 市街化 ●国土法提出 不要 ●設備・条件 都市ガス 公営水道 公共下水 陽当り良好、眺望良好、電気、2沿線以上利用可、複数路線利用可、整形地、平坦地、下水道、閑静な住宅地、南面道路、上水道、食器洗乾燥機、対面式キッチン、システムキッチン、浄水器、省エネ給湯器、追焚き給湯、シャワー、浴室に窓、浴室暖房、浴室乾燥機、バス1坪以上、温水洗浄便座、トイレ2ヶ所、バストイレ別、節水型トイレ、室内洗濯機置場、シャワー付き洗面化粧台、独立洗面台、収納、全居室収納スペース、ウォークインクローゼット、納戸、バルコニー、2面採光、ダウンライト、全居室フローリング、フローリング、Low-Eガラス、全居室複層ガラスか複層サッシ、TVインターホン、ディンプルキー、床暖房、火災警報器(報知機)、LDK18帖以上、24時間換気システム、リビングイン階段、外壁サイディング、省エネラベル、デザイナーズ、フラット35S適合証明書 ●備考 景観法、航空法、宅地造成工事規制区域、準防火地域、敷地面積最低限度有(70平米)、日影制限有、第三種高度地区【車庫スペース】1号棟:14.82平米、2号棟:13.10平米含む
スーパーヤマイチ 東小岩店168m/まいばすけっと 北小岩1丁目店270m/セブン-イレブン 江戸川東小岩6丁目店278m/ミニストップ 西小岩1丁目店280m/うさぎ児童遊園184m/なかよし公園326m/玉城医院238m/小岩医院281m/江戸川双葉幼稚園454m/江戸川白百合幼稚園385m/桜華保育園278m/小岩駅前みつばち保育園208m ●駐車場 有 ●学区 江戸川区立小岩小学校 642m・江戸川区立小岩第一中学校 852m ●引渡時期 期日指定 2026年5月下旬 ●取引態様 媒介 ●情報変更日 2026年2月12日 ●次回更新予定日 2026年3月3日
南側 5.45m 公道
スーパーヤマイチ 東小岩店168m/まいばすけっと 北小岩1丁目店270m/セブン-イレブン 江戸川東小岩6丁目店278m/ミニストップ 西小岩1丁目店280m/うさぎ児童遊園184m/なかよし公園326m/玉城医院238m/小岩医院281m/江戸川双葉幼稚園454m/江戸川白百合幼稚園385m/桜華保育園278m/小岩駅前みつばち保育園208m

