葛飾区西亀有3丁目 売地/建築条件付き/全5区画
| 価格 | 4186万円 |
| 所在地 | 東京都葛飾区西亀有3丁目 |
| 沿線・駅 | 千代田常磐線亀有駅 徒歩17分~19分 東京メトロ千代田線綾瀬駅 徒歩18分~20分 京成本線お花茶屋駅 徒歩24分~26分 |
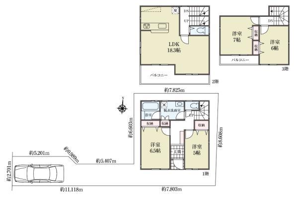
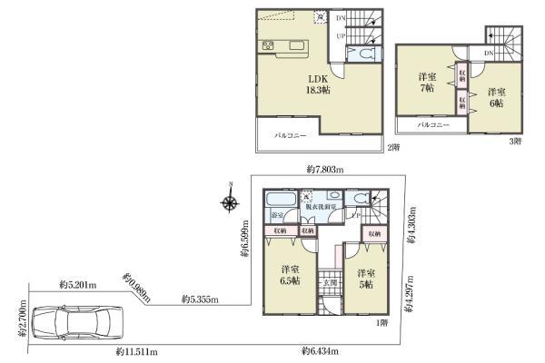
| 土地面積 | 92.40m2(27.95坪)~92.74m2(28.05坪) |
各棟情報
おすすめポイント
モデルハウス今から見れます!【グーグル口コミ☆4.4】【諸条件相談可】
■□営業のオススメポイント□■
・常磐緩行線「亀有」駅と始発駅である「綾瀬」駅まで中間地点の立地
・せせらぎ公園が目の前の為、自然豊かな立地となっております
・南向きの為、日当たり良好な物件となっております
・外壁から内装までカラーセレクトセレクトが可能
・葛飾区立西亀有小学校徒歩6分、葛飾区立一之台中学校徒歩9分の立地の為、安心して通わせることができます
・建物プランは全棟100平米越えとなっている為、ボリュームある広々としたプランになっております
モデルハウス・ショールームも御座いますのでいつでもご案内可能となります。
設計士とのお打ち合わせも可能となっておりますが、予約制となっておりますのでご希望のお客様はお問合せの際に日時を入れていただければと思います。
平日、夜間問わずお気軽にお問い合わせ下さい。
周辺環境やその他の物件情報も含めてご提案させて頂きますので是非一度ご相談下さいませ。
物件詳細
| 所在地 | 東京都葛飾区西亀有3丁目17 | ||
|---|---|---|---|
| 交通 | 千代田常磐線亀有駅 徒歩17分~19分 東京メトロ千代田線綾瀬駅 徒歩18分~20分 京成本線お花茶屋駅 徒歩24分~26分 |
||
| 総区画数 | 5区画 | ||
| 販売区画数 | 2区画 | ||
| 価格 | 4186万円 | ||
| 土地面積 | 92.40m2(27.95坪)~92.74m2(28.05坪) セットバック済 | ||
| 土地権利 | 所有権 | ||
| 都市計画 | 市街化 | ||
| 用途地域 | 第1種中高層住居専用地域 | ||
| 建ぺい率/容積率 | 60%/160% | ||
| 地目 | 宅地 | ||
| 接道 | 西側 4.00m 公道 |
||
| 私道負担 | 無 |
||
| 現況 | 更地 | ||
| 設備 | 都市ガス 公営水道 公共下水 | ||
| 引渡日 | 相談 | ||
| 取引形態 | 媒介 | ||
| 備考 | 準防火地域、第2種高度地区、【路地状面積】約31.55平米(B区画)・約31.45平米(D区画)含む、※この土地は、土地売買契約後3ヶ月以内に売主会社と建物の建築請負契約を締結することを条件に販売します。この期間内に建築請負契約を締結されなかった場合は、土地売買契約は白紙となり、受領した手付金等の土地代金は全てお返しします。 | ||
| 更新日 | 2025年12月5日 | ||
| 次回更新予定日 | 2025年12月21日 | ||
| 開発面積 | |||
| 取引有効期限 | 2025年12月21日 | ||
周辺環境
| 施設 | 葛飾区立西亀有小学校 438m 葛飾区立一之台中学校 648m セブンイレブン 葛飾西亀有3丁目店 217m 全日食チェーン ベニースーパー西亀有店 385m ビーンズ亀有 1234m ほしの内科クリニック 719m 大貫内科クリニック 592m Olympic(オリンピック) 西亀有店 493m ファミリーマート 西亀有二丁目店 342m 西亀有三丁目保育園 296m 上千葉砂原公園 484m 下河原公園 683m 白鳥保育園 219m |
||
|---|---|---|---|
| 周辺の物件検索 | |||
現地見学会情報
お問い合わせ 本店(営業部)
0120-566-877






































